發布時間:2023-06-30 09:14:51 作 者:袁封雪
NE型板鏈斗提機是TB型垂直斗式提升機的升級版,其采用先進的板鏈技術使輸送提升更加,且能耗低,使用壽命長。空口白話沒有實際意義,下面我們給出NE型板鏈斗提機的規格型號和具體尺寸參數,用事實說話。



Ne板鏈提升機共有11種型號:NE15、NE30、NE50、NE150、NE200、NE300、NE400、NE500、NE600、NE800。型號越大,代表的輸送產量約高。其輸送產量可高達110m³/h,提升量范圍為15 ~ 800立方/時,提升高度可達40米。客戶可根據自己實際需要輸送提升物料量來決定選擇何種型號的Ne板鏈提升機。
以下是Ne板鏈提升機的技術參數表:

| 型號 | 提升能力 (m³/h) |
斗速(m/s) | 主軸轉數(n/min) | 料 斗 | 鏈條節距 (mm) |
運行部件重量(Kg/m) | 物料塊度(mm) | ||||||
|---|---|---|---|---|---|---|---|---|---|---|---|---|---|
| 容積 (L) |
斗寬 (mm) |
斗距 (mm) |
|||||||||||
| 允許所占百分比% | |||||||||||||
| 10 | 25 | 50 | 75 | 100 | |||||||||
| NE15 | 15 | 約0.5 | 16.54 | 2.5 | 250 | 203.2 | 101.6 | 27.5 | 65 | 50 | 40 | 30 | 25 |
| NE30 | 30 | 約0.5 | 16.54 | 7.8 | 300 | 304.8 | 152.4 | 35 | 90 | 75 | 58 | 47 | 40 |
| NE50 | 60 | 約0.5 | 16.54 | 15.7 | 300 | 304.8 | 152.4 | 64 | 90 | 75 | 58 | 47 | 40 |
| NE100 | 110 | 約0.5 | 14.13 | 35 | 400 | 400 | 200 | 89 | 130 | 105 | 80 | 65 | 55 |
| NE150 | 170 | 約0.5 | 14.13 | 52.2 | 600 | 400 | 200 | 112.5 | 130 | 105 | 80 | 65 | 55 |
| NE200 | 210 | 約0.5 | 10.9 | 84.6 | 600 | 500 | 250 | 134 | 170 | 135 | 100 | 85 | 70 |
| NE300 | 320 | 約0.5 | 10.9 | 127.5 | 700 | 500 | 250 | 188 | 170 | 135 | 100 | 85 | 70 |
| NE400 | 380 | 約0.5 | 8.3 | 182.5 | 700 | 600 | 300 | 205 | 205 | 165 | 125 | 105 | 90 |
| NE500 | 470 | 約0.5 | 7.1 | 260.9 | 700 | 700 | 350 | 223 | 240 | 190 | 145 | 120 | 100 |
| NE600 | 600 | 約0.5 | 7.1 | 330.2 | 800 | 700 | 350 | 350 | 240 | 190 | 145 | 120 | 100 |
| NE800 | 800 | 約0.5 | 6.2 | 501.8 | 800 | 800 | 400 | 313 | 270 | 220 | 165 | 135 | 110 |
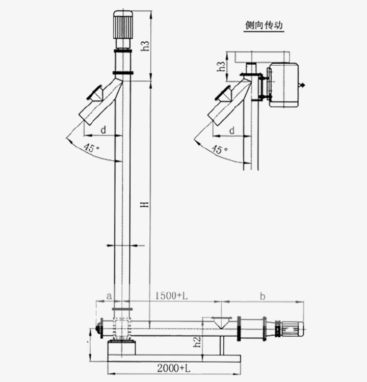
Ne板鏈提升機分為到單排鏈和雙排鏈,NE30及以下采用單排鏈,NE50及以上采用雙排鏈,NE30和NE50節距一樣,但是外觀不一樣,NE50的箱體要長一些。其主要有:內外鏈板、滾子、套筒、銷軸、銷釘等配件。板鏈外板的六孔板對應料斗的安裝尺寸。
以下是NE型板鏈斗提機尺寸表:

| 斗提機型號 | TD100 | TD160 | TD250 | TD315 | TD400 | TD500 | |
| 輪廓高度L | C+1100 | C+1363 | C+1535 | C+1640 | C+1790 | C+1865 | |
| 整機結構 | H H4 S |
C-820 600 200 |
C-930 700 250 |
C-1250 800 250 |
C-1245 850 250 |
C-1500 950 250 |
C-1700 900 250 |
| 料斗 | t b |
200 100 |
350/280 160 |
450/360 250 |
500/400 315 |
560/480 400 |
625/500 500 |
| 地腳孔 | a3 b3 n3 d3 |
200 310 8 Φ18 |
250 400 8 Φ18 |
300 538 8 Φ18 |
300 648 8 Φ18 |
400 768 8 Φ22 |
400 900 8 Φ22 |
| 上、下部機殼及外形輪廓 | H3 H6 A2 A6 A7 B2 B4 B5 |
970 1210 692 776 1050 220 370 330 |
1185 1500 985 996 1235 295 461 475 |
1320 1800 1175 1266 1600 394 596 610 |
1488 1800 1200 1266 1700 440 706 710 |
1500 2000 1350 1558 1980 535 828 835 |
1655 2300 1410 1610 2200 605 980 1000 |
| 中部機殼 | A4 A5 B3 |
776 805 390 |
982 1021 525 |
1152 1302 682 |
1254 1400 794 |
1548 1580 920 |
1570 1630 1040 |
| 卸料口 | H1 A3 a1 a2 a3 b1 b2 b3 n1 d1 |
520 438 334 120 390 224 95 280 12 Φ12 |
630 548 365 150 431 315 150 381 12 Φ12 |
750 713 600 200 676 450 200 526 12 Φ12 |
795 763 560 230 638 560 230 638 12 Φ12 |
850 824 670 295 758 670 295 758 12 Φ14 |
1000 885 700 355 880 780 300 800 12 Φ18 |
標簽: NE板鏈提升機的規格型號和具體尺寸參數介紹 ; NE板鏈提升機的規格型號; NE板鏈提升機尺寸參數。
Copyright ? 2008-2024 螺旋輸送機廠家-新鄉市大漢振動機械有限公司 All Rights Reserved 版權所有
網站備案號:豫ICP備09002479號-47

